Engern - Bebauungspläne
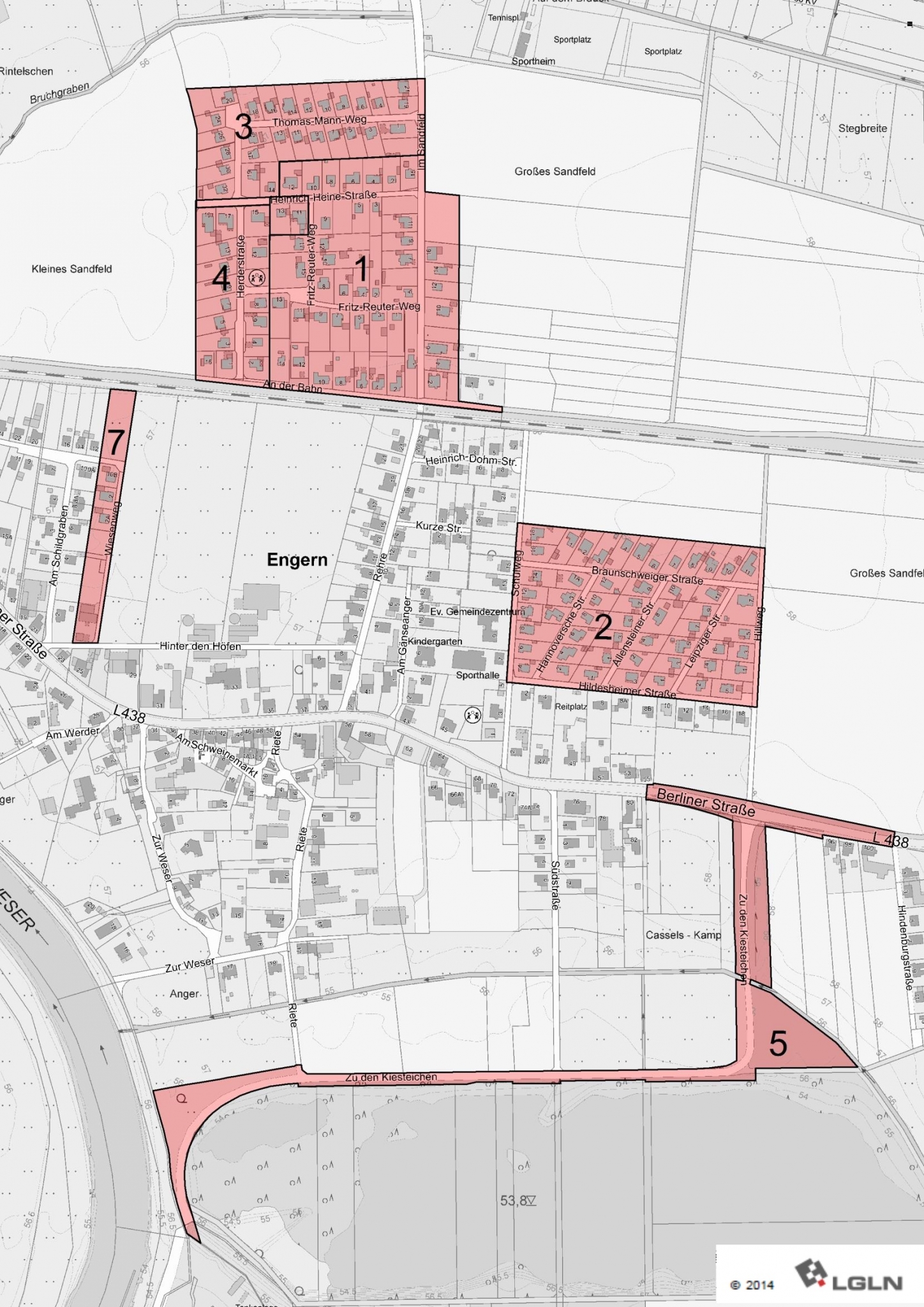
In der Grafik sind die Geltungsbereiche der Bebauungspläne vom Ortsteil Engern dargestellt. Klicken Sie auf auf die Grafik um die Karte zu vergrößern bzw. um heranzuzoomen.
In der Tabelle sind die jeweilgen Bebauungspläne gelistet. Hier bekommen Sie Informationen über den Namen des BPlans und seit wann er rechtkräftig ist. Außerdem können Sie durch den Link in der Spalte "PDF" den Bebauungsplan einsehen, runterladen oder ausdrucken. Gleiches gilt für die Spalte "Anlagen", hier befinden sich zusätzliche Informationen zum BPlan wie zum Beispiel die Begründung.
Die hier gezeigten Bebauungspläne dienen lediglich der Erleichterung, sich über die jeweiligen Pläne zu informieren. Die Stadt Rinteln gewährt keine Gewähr auf Vollständigkeit.
Bei Fragen wenden Sie sich bitte an den Ansprechpartner, der auf der Registerseite "Bauleitplanung" genannt ist.
Hinweis: Die in der Grafik dargstellten Abgrenzungen der Geltungsbereiche erheben keinen Anspruch auf Vollständigkeit und sind den einzelnen Bebauungsplänen zu entnehmen. Die Grafik ist verkleinert und dadurch nicht mehr maßstäblich!
| Nr. | Bebauungsplan | Rechtskraft | Anlage | |
| 1 | Das große Sandfeld | 30.10.1962 | EngNr1 | |
| 2 | Das große Sandfeld Ost | 23.03.1965 | EngNr2 | Satzung & Begründung |
| 3 | Das große Sandfeld | 17.09.1969 | EngNr3 | Satzung |
| 4 | Das kleine Sandfeld | 20.02.1974 | EngNr4 | Begründung |
| 5 | Zuwegung zum Verbundsteinwerk Ahe | 18.10.1989 | EngNr5 | Begründung |
| 7 | Hinter den Höfen | 31.03.2008 | EngNr7 | Begründung |
Hinweis: In der folgenden Grafik können Sie sehen, ob der Bebauungsplan im vorläufig festgesetzten Überschwemmungsgebiet liegt. Sollte dies der Fall sein, benötigen Sie bei Bebauung eine wasserrechtliche Genehmigung vom Landkreis Schaumburg.



